今回はキュービクル(高圧受電設備)の新設工事を受注したので、見積から受電までの全工程を写真つきで紹介します。

全体の流れ

キュービクル新設工事は、ざっくりこの順番で進みます。

1. 見積作成2. 工事仕様の確定3. 施工図の作成・承認4. 電力会社への申請・消防への届出5. キュービクルの発注6. 建柱作業7. 高圧ケーブル敷設・高圧端末処理8. キュービクル基礎工事9. キュービクル搬入・据付10. 受電

今回の現場では、1月に申請を出して、5月に受電予定。約5ヶ月のスケジュールです。

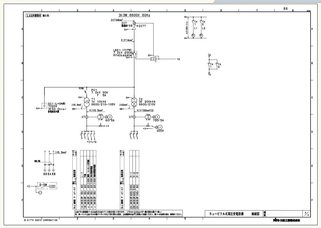
施工図の作成と電力会社・消防への申請

まずは図面です。キュービクルの外形図、高圧引込配線図、結線図を作成します。今回は200kVAの高圧受電設備で、契約種別は高圧電力第1種です。

外形図
外形図
配線図
配線図
盤図
盤図

図面が承認されたら、電力会社へ新設の申請と高調波計算書の提出を行います。同時に、消防への届出も必要です。申請が通ると、電力会社から短絡電流計算書が届きます。この数値をもとにしゃ断器の容量を選定します。受電希望日から逆算して、余裕を持ったスケジュールを組むのがポイントです。申請が遅れると、受電日がズレて工程全体に影響します。

進相コンデンサの容量選定も重要です。過剰に設置すると進み力率で系統電圧が上がり、停電の原因になります。電力会社からも適正な容量と自動開閉の運用を求められます。

もうひとつ、今回やってみて初めて知ったことがあります。重耐塩用のVCTやWHMは納期が半年以上かかります。今回は間に合わなかったため、受電後に停電して取り換える段取りにしました。

電力会社申請
電力会社申請

建柱作業

電柱を建てる工程です。建柱車という専用車で穴を掘り、電柱を吊り上げて建てます。建柱位置にはさまざまな制約がある。既設の配管、隣地境界、架空線の離隔距離。事前に電力会社との現地打合せを実施して、位置を確定させた。

腕金の装柱方法や金具の仕様も、電力会社の指示に従って施工する。

電力会社指示
電力会社指示
電力会社指示
電力会社指示
建柱作業
建柱作業
建柱作業
建柱作業
建柱完了
建柱完了

建柱が完了したら、高圧ケーブルの敷設と高圧端末処理に進みます。高所作業車を使って、架空引込みの作業を行います。

ケーブル敷設、高圧端末処理
ケーブル敷設、高圧端末処理

キュービクル基礎工事

キュービクルを載せるコンクリート基礎を打ちます。工程はこの3ステップ。

1. 鉄筋組み:配筋して強度を確保2. 型枠設置:コンクリートの形を決める3. コンクリート打設:打設して養生

基礎配筋
基礎配筋
基礎型枠
基礎型枠
基礎完成
基礎完成

基礎のサイズや配筋は、キュービクルの重量と設置場所に合わせて設計します。地中にはケーブルを通す配管も仕込んでおく。

打設後、養生期間を経て型枠を外せば基礎の完成。

5月、キュービクル搬入へ

現在はここまで完了。5月にキュービクル本体を搬入・据付して、結線、試験を経て受電の予定です。

まとめ

キュービクル新設は、電気屋だけで完結する工事ではありません。建柱会社、土木会社、電力会社、消防と多方面との調整が必要です。自分たちはその全体を管理しながら、施工図から申請、現場施工まで一貫して対応しています。